往復式給料機傳動原理
往復式給料機傳動原理-煤廠給煤機 礦山給礦機 生產廠家定制加工 13353676726

產品介紹
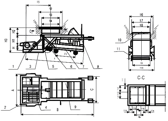
K型往復式給料機(往復式給煤機)適用于礦井和選煤廠,將煤碳經煤倉均勻地裝載到輸送機或其它篩選,貯存裝置上。該機結構是由機架、底板(給料槽)傳動平臺、漏斗閘門、托輥等組成。我公司生產的K系列往復式給料機傳動原理:當電動機開動后,經彈性聯軸器、減速器、曲柄連軒機構拖動傾斜的底板在插輥上作直線往復運動,將煤均勻地卸到運輸機械或其它篩選設備上。該機設有帶漏斗、帶調節閥門和不帶漏斗、不帶調節閥門兩種形式。

產品特點
1、結構簡單,運行可靠,調節安裝方便。
2、裝有限矩型液力偶合器,能滿載啟動,過載保護。
3、重量輕、體積小、工作可靠、壽命長、維護保養方便。
4、給料量可達1200噸/小時(煤),是目前國內的往復式給料機。
5、采用了先進的平面二次包絡環面騾桿減速器設計,承載能力大,傳動效率高。
6、側襯板、斜襯板與底板之間留縫可調,能比較準確地控制留縫大小,大大減少了漏料。
7、驅動裝置對稱布置,并采用雙推桿,使整機愛力均衡,傳動平穩,消除了底板往復時的扭擺現象。
8、底板有立向筋板,并用三道通長托輥支承,保證了底板本身剛度,消除了現有往復式給料機底板工作中彎曲變形的弊病。
9、襯板由小塊耐磨鋼板拼成,這樣不僅更換時輕便容易,而且可以根據實際磨損情況,有針對性地更換磨損了的襯板塊,從而使材料合理利用,降低維修費用。

工作原理
在料倉下部設一導料槽,導料槽底版為活動式,用一動力裝置帶動底板循環往復運動,當底板向給料口方向運行時,物料隨底版一起運動,完成給料過程;當底版向反方向運行時,物料在內壓力及內外摩擦力的共同作用下,物料并不隨底板一起運動;底板不斷循環往復運動,倉內物料不斷的被送往出料口。
結構特征
產品應用
K型往復式給料機適用于礦山、礦井、選煤廠、中轉站、輸煤車間、港口散料碼頭等散料轉運,可將散料經料倉或直接進行均勻的轉載到膠帶機或其它篩選設備、貯存裝置等配合使用。實現對礦石、砂煤、糧食等散裝物料的均勻 給料.本設備機體安裝于料斗下,傳動裝置為懸掛式,根據給料量的大小可分:K1、K2、K3、K4等幾種型號。
|
型號 |
曲柄轉數(rpm) |
曲柄位置 |
底板行程(mm) |
生產能力 |
電動機 |
減速機 |
粒度 |
重量(KG) |
||||||
|
煙煤(t) |
無煙煤(t) |
型號 |
功率(Kw) |
轉速(rpm) |
型號 |
速比 |
粒度含量10%以下 |
粒度含量10%以上 |
帶漏 |
不帶漏 |
||||
|
K-0 |
57 |
1 |
50 |
22 |
25 |
Y160N1-8或YB160M1-8 |
4 |
720 |
JZQ350 |
12.63 |
350 |
300 |
1150 |
1080 |
|
2 |
100 |
45 |
50 |
|||||||||||
|
3 |
150 |
67 |
75 |
|||||||||||
|
4 |
200 |
90 |
100 |
|||||||||||
|
K-1 |
57 |
1 |
50 |
31 |
38 |
Y160N1-8或YB160M1-8 |
4 |
720 |
JZQ350 |
12.63 |
350 |
300 |
1253 |
1157 |
|
2 |
100 |
68 |
75 |
|||||||||||
|
3 |
150 |
100 |
112 |
|||||||||||
|
4 |
200 |
135 |
150 |
|||||||||||
|
K-2 |
57 |
1 |
50 |
50 |
550 |
Y160N1-8或YB160M1-8 |
4 |
720 |
JZQ350 |
12.63 |
400 |
350 |
1420 |
1288 |
|
2 |
100 |
100 |
113 |
|||||||||||
|
3 |
150 |
150 |
170 |
|||||||||||
|
4 |
200 |
200 |
225 |
|||||||||||
|
K-3 |
62 |
1 |
50 |
75 |
83 |
Y160N1-8或YB160M1-8 |
7.5 |
960 |
JZQ400 |
15.75 |
500 |
450 |
1940 |
1830 |
|
2 |
100 |
150 |
165 |
|||||||||||
|
3 |
150 |
210 |
247 |
|||||||||||
|
4 |
200 |
300 |
330 |
|||||||||||
|
K-4 |
62 |
1 |
50 |
130 |
140 |
Y160N1-8或YB160M1-8 |
15 |
970 |
JZQ500 |
15.75 |
700 |
550 |
2880 |
2680 |
|
2 |
130 |
260 |
290 |
|||||||||||
|
3 |
140 |
390 |
440 |
|||||||||||
|
4 |
240 |
530 |
590 |
|||||||||||
安裝說明: 給煤機體(或漏斗)是固定在料倉口下,在安裝前需要找平,將機架與料倉口用螺栓堅固。然后再將傳動平臺找正,H形架與機架、傳動平臺焊牢。減速機、電機找正,調節好后,螺栓堅固。
K型往復式給料機廠家提示:請通過正規渠道購買奧創K型往復式給料機,以保障您的合法權益!
訂購網址請登錄河南奧創機械有限公司官方網站: www.symhhb.cn 24小時服務熱線:13353676726


