
骨料振動篩介紹:
什么是骨料?
混凝土及砂漿中起骨架和填充作用的粒狀材料。有細骨料和粗骨料兩種。細骨料顆粒直徑在0.16~5 mm之間.一般采用天然砂,如河砂、海砂及山谷砂等,當缺乏天然砂時,也可用堅硬巖石磨碎的人工砂;粗骨料顆粒直徑大于5 mm,常用的有碎石和卵石,在同樣條件下,碎石混凝土的強度比卵石混凝土的高,但碎石是由巖石軋碎而成,成本較卵石為高。輕骨料混凝土中常用的粗骨料有浮石等天然多孔巖石,陶粒、膨脹礦渣等人造多孔骨料。

砂石骨料振動篩介紹
砂石骨料振動篩是針對砂石骨料行業研發的一種篩機,該篩機采用全密封設計,環保使用,采用兩臺振動電機或兩串聯的四臺側板電機為激振源,兩臺電機或兩組側板電機反向運轉實現自同步,其振動軌跡是直線,篩網是數4-6層,全封閉結構,設計振幅一般在5-7mm范圍內。
工作原理:
將顆粒大小不同的碎散物料群,多次通過均勻布孔的單層或多層篩面,分成若干不同級別的過程成為篩分。大于篩孔的顆粒留在篩面上,稱為該篩面的篩上物,小于篩孔的顆粒透過篩孔,稱為該篩面的篩下物。實際的篩分過程是:大量粒度大小不同、粗細混雜的碎散物料進入篩面后,只有一部分顆粒與篩面接觸,由于篩箱的振動,篩上物料層被松散,使大顆粒本來就存在的間隙被進一步擴大,小顆粒乘機穿過間隙,轉移到下層或運輸機上。由于小顆粒間隙小,大顆粒并不能穿過,于是原來雜亂無章排列的顆粒群發生了分離,即按顆粒大小進行了分層,形成了小顆粒在下,粗顆粒居上的排列規則。到達篩面的細顆粒,小于篩孔者透篩,最終實現了粗、細粒分離,完成篩分過程。然而,充分的分離是沒有的,在篩分時,一般都有一部分篩下物留在篩上物中。細粒透篩時,雖然顆粒都小于篩孔,但它們透篩的難易程度不同,物料和篩孔尺寸相近的顆粒,透篩就較難,透過篩面下層的顆粒間隙就更難。
使用優點:
1、能夠實現產品多粒度分級。
2、整個篩面分前后兩段,實現前后兩段傾斜角度略有不同,實現高效篩分。
3、可以通過增加篩網層數,解決二次破碎某擋料粒度含量多或分級粒度跨度大造成的料層厚,篩分不充分的瓶頸。
4、全密閉結構,滿足環保要求。
5、運行平穩,節能,操作方便。
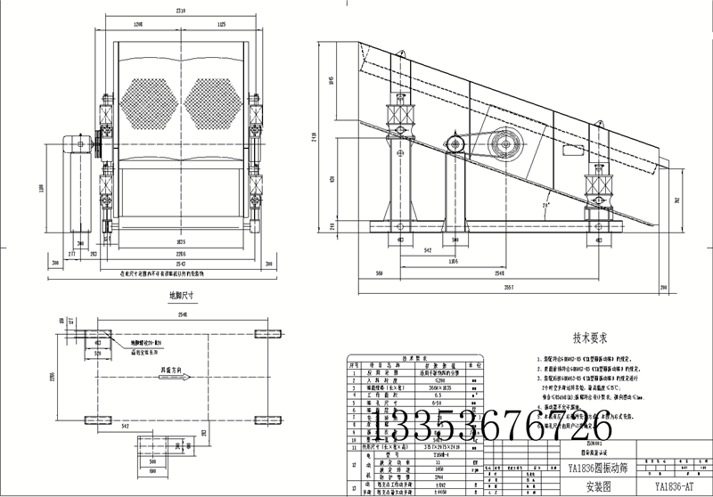
圓振篩結構圖紙
振動篩參數表:
使用說明書:
一、日常保養
啟動前:
1.檢查粗網及細網有無破損
2.每一組束環是否鎖緊3.。檢查旋振篩的篩框的V型圈是否有破損,如果有破損需要及時修補,防止物料泄露。
啟動時:
1、注意有無異常雜音、電流是否穩定
2、振動有無異狀
3、使用后:每次使用完畢即清理干凈.
二、定期保養
定期的檢查粗網,細網和彈簧有無疲勞及破損,機身各部位是否因振動而產生損壞,需添加潤滑油的部位必須加油潤滑。振動:有了型號 篩面規格 篩面層數 篩孔尺寸 進料粒度 處理量 電機功率 振動頻率 雙振幅這些數據,可以讓搜索震動篩的人有更深刻的了解。
河南奧創機械設備結構圖紙、價格計算,歡迎實地考察!
訂購網址請登錄河南奧創機械有限公司官方網站:www.symhhb.cn 24小時服務熱線:13353676726