HL型環鏈離心斗式提升機|環鏈提升機制法和裝法
文章作者:奧創機械發布時間:2019/12/11 14:03:15瀏覽次數:
HL型環鏈離心斗式提升機試機視頻廠家現場展示
HL型環鏈離心斗式提升機(環鏈提升機)制法和裝法:
1、按料斗形狀分為兩種:S制法--帶有深園底形料斗;Q制法--帶有淺園底形料斗
2、按上部區段卸料口的形式分為兩種:X1 制法--帶有傾斜法蘭的卸料口;X2 制法--帶有水平法蘭的卸料口
3、按下部區段進料口的形式分為兩種:J1 制法--進料口的斜面與水平面成45度角;J2 制法--進料口的斜面與水平面成60度角
4、按中間機殼側面檢視門的位置分為四種:K1 制法--中間機殼側面帶有下端左檢視門;K2 制法--中間機殼側面帶有下端右檢視門;K3 制法--中間機殼側面帶有上端左檢視門;K4 制法--中間機殼側面帶有上端右檢視門
5、按中間機殼端面檢視門的位置分為兩種:Z1 制法--中間機殼端面帶有下端檢視門;Z2 制法--中間機殼端面帶有上端檢視門
6、按傳動裝置對斗式提升機的相對位置分為兩種:左裝--傳動裝置在左側;右裝--傳動裝置在右側
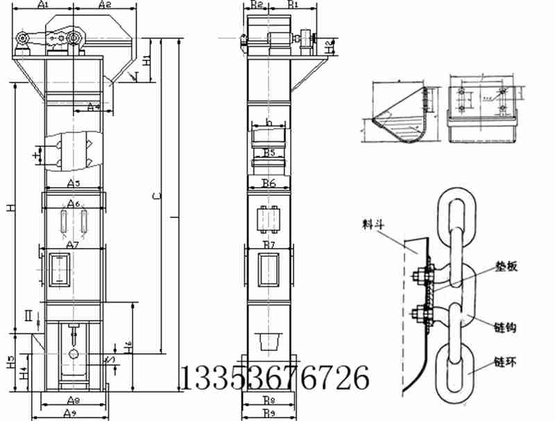
HL型環鏈離心斗式提升機(環鏈提升機)外形示意圖:
HL型環鏈離心斗式提升機產品展示
機頭展示
箱體展示
機尾展示

河南奧創斗式提升機結構圖紙繪畫、價格計算、廠家真機圖片展示,及到廠實地考察接待,歡迎實地考察!
訂購網址請登錄河南奧創機械有限公司官方網站:www.symhhb.cn 24小時服務熱線:13353676726


