斗式提升機cad圖紙|主體結構圖紙|內部分截圖
文章作者:奧創機械發布時間:2019/12/18 13:20:00瀏覽次數:
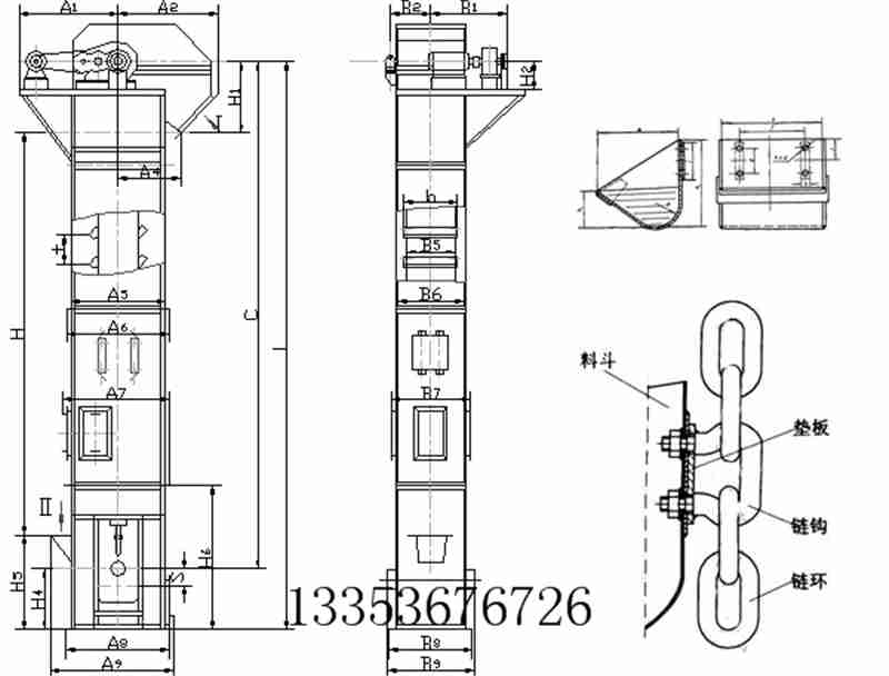
斗式提升機cad圖紙
斗式提升機主體結構圖紙
斗式提升機內部分截圖
河南奧創斗式提升機結構圖紙繪畫、價格計算、廠家真機圖片展示,及到廠實地考察接待,歡迎實地考察!
訂購網址請登錄河南奧創機械有限公司官方網站:www.symhhb.cn 24小時服務熱線:13353676726


